Villa a schiera

Soluzione indipendente in posizione centrale, ideale per 2 nuclei familiari o investimento.

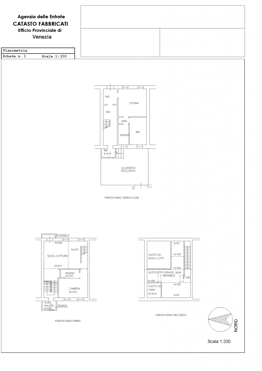
L'unità al piano terra, è così composta:

- ingresso su soggiorno con angolo cottura
- stanza
- anti bagno
- bagno finestrato con doccia

La seconda unità, posta al piano primo e mansarda, è così composta:

- comodo disimpegno con ripostiglio al piano terra
- soggiorno con angolo cottura di 32 mq
- camera matrimoniale con bagno
- secondo bagno
piacevole scala a vista che porta al piano sottotetto di circa 34 mq con travi antiche a vista e affaccio sulla zona giorno

A completare la soluzione al piano terra uno scoperto esclusivo e magazzino di 13 mq.

L'immobile è stato completamente ristrutturato recentemente e dotato di comfort come riscaldamento a pavimento, 2 condizionatori, cappotto interno, infissi triplo vetro, videocitofono, impianto elettrico ed idraulico con relative certificazioni e zanzariere.
Immobile ristrutturato con intervento antisismico e rifacimento completo del tetto (guaina, coppi e coibentazione).

Rif. B03
Prezzo euro: 289.000
C.E: D Ipe: 127,44 Kwh/mq anno

Metroquadro
Via Piave 21, Dolo
Tel. 0415649956
Email: info@metroquadroriviera.it

N.B. per motivi di privacy, l'indirizzo e il puntatore nella mappa sono puramente indicativi e non corrispondono esattamente all'ubicazione dell'immobile.
Contattaci per avere maggiori informazioni sull'immobile.

289.000 € 
Riferimento
B03
Mq
148
Camere
2
Bagni
3
Spese condominiali
Tipologia
Casa a schiera
Contratto
vendita
Comune
Dolo
Zona
Dolo - Centro

Informazioni Extra

Ambienti
Soggiorno angolo cottura
Poggioli/balconi 1
Sottotetto
Livelli & comfort
Livelli Piano terra , Primo piano
Aria condizionata
Caldaia a condensazione
Riscaldamento a pavimento
Domotica
Porta blindata
Zanzariere

contattaci.

289.000 € 
Riferimento
B03
Mq
148
Camere
2
Bagni
3
Tipologia
Casa a schiera
Contratto
vendita
Comune
Dolo
Zona
Dolo - Centro

 

2
2
D
127.44
n/d